Refine Search

0 Sunnyhill Ave/mary Duffy Drive , Williamstown, NJ 08094

$699,890
  • 0 Sunnyhill Ave/mary Duffy Drive , Williamstown, NJ 08094 Main Photo

3 Total Photos [Click to View All]

New to the Market ACTIVE
LOT SIZE 7.100 acres MLS#NJGL2071222
STATUSACTIVE PROPERTY TYPELand - Lot/Land SUBDIVISIONVICTORY LAKES SCHOOLMONROE TOWNSHIP PUBLIC SCHOOLS

Property Description

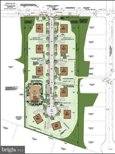
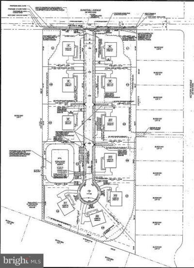
RESIDENTIAL DEVELOPMENT OPPORTUNITY: Rare opportunity to acquire a fully approved 10-lot residential subdivision in desirable Monroe Township, New Jersey. Buyers should independently verify with the township any potential tax abatement opportunities associated with the lots. Skip the entitlement risk, township meetings, added costs, and lengthy approval timelines—subdivision approvals are already in place, allowing you to move directly into site work and vertical construction planning. Property Highlights:10 buildable lots with final subdivision approvals in hand. Located in Monroe Township, NJ, a strong growth market with public sewer availability. Subdivision approvals are complete, with supporting documents available upon request. Phase I Environmental Report completed on June 24, 2025, and available for review. Prime location with convenient access to major roadways, schools, shopping, and everyday amenities. Ideal For: Builders, small- to mid-size developers, and investor groups seeking a manageable project to quickly add to their development pipeline. Due Diligence / Access: Subdivision approvals, plans, and related documents are available for review upon request.

0 Sunnyhill Ave/mary Duffy Drive | MLS# NJGL2071222

This land located at 0 Sunnyhill Ave/mary Duffy Drive , Williamstown, NJ 08094 is currently listed for sale with an asking price of $699,890. The property has approximately 7.10 Acres. Sunnyhill Ave/mary Duffy Drive is located within the MONROE TOWNSHIP PUBLIC SCHOOLS school district. Search Williamstown real estate on www.joinrealtymark.net today.

Property Features

Property Type: Land - Lot/Land
Lot Size: 7.10 Acres
Taxes: $2,310

Feature Descriptions

Community Amenities: Boat Ramp, Club House, Lake, Picnic Area, Pier/Dock, Water/Lake Privileges
Days on Site: 3
HOA Fee: $285.00/Annually
Lot: Backs to Trees, Premium, Private, Subdivision Possible, Trees/Wooded
Lot Dimensions: 7.10 Acre(S)
Municipality: MONROE TWP
Sewer: Public Hook/Up Avail
Special View Info: Trees/Woods
Utilities: Sewer Available, Natural Gas Available, Electric Available, Phone Available, Cable TV Available
Water: Well Required
Wooded: Yes

Local Schools

School District: MONROE TOWNSHIP PUBLIC SCHOOLS

Listed By / Shown By

Listed By

Agency Name: Keller Williams Realty - Washington Township
Agency Phone: 8565821200

Shown By

Agency Title: RealtyMark
Agency Phone: 888-240-0600

IDX logo

Estimate Your Payment

Estimated Payment

$ 1,954.29 per month $1,557.65 Principal & Interest $192.50 Property Tax $204.13 Homeowner's Insurance

Change Payment Information

%
years/fixed
yearly
yearly (est.)
(Payments are an estimate and may vary by lender)

Login to My Homefinder

Pixel